【※不正利用防止のため、注文情報に不備や不審な点がある場合は注文をキャンセルさせていただく場合がございます。】


【納期遅延について】
メーカー欠品中の場合は商品詳細の発送予定日よりお時間かかる可能性がございます。
予めご了承ください。
遅延が発覚した場合は、別途メールにてご連絡させていただきます。
ご購入後はメールのご確認をお願い致します。


【販売終了品について】
販売終了している商品は当店でお取り扱いが終了した時点での定価と販売価格になります。
販売終了している商品へお取替えをご希望の場合は、取替え可能な代替品をご案内させていただきます。
お取替え工事ご希望の方はこちらをご参照ください。



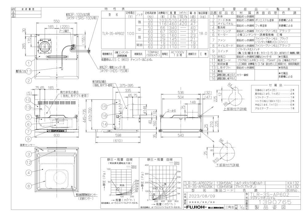
レンジフード 富士工業製(Rinnai)TLR-3S-AP602BK 間口60cm ブラック TLRシリーズ クリーンフード 上幕板付き

TLR-3S-AP602BK

79,330円(税込87,263円)

定価 114,800円(税込126,280円)

※お取り寄せ商品につき、お届けまでに7営業日前後(土日祝休日)かかります。
メーカー都合によっては納期がかかる場合があります。





※横幕板別途お問合せ下さい

※上幕板(前幕板)付きの価格となります。

※同時給排用をご希望の場合は別途お問い合わせ下さい。

ノンフィルタ・スリム型
●間口:60cm
●総高さ:44.5〜73.5cm
●本体カラー:ブラック

●LED照明(調光あり)
●ワンタッチ着脱ファン
●シロッコファン
●ノンフィルター
●オイルガード
●一体クリーンパネル
●整流板
●ファンシークリーン

●ソフトタッチスイッチ
●常時換気
●3段階タイマー
●お手入れランプ
●切り忘れ防止タイマー

※コンロ連動なし
●サーモONサポート(コンロの周辺温度を検知して運転開始をサポート)
●抗菌(スイッチ部に抗菌効果のある素材を使用)
●スライド前幕板
●600mm離隔対応
●電動密閉式シャッター対応(別売品)
●市販電動給気ダンパー連動(別売品)
※上記内容は2023年9月カタログ掲載情報となります。

☆工事ご希望の方はこちら
☆この商品の関連情報と施工事例はこちら

カテゴリーから探す