【※不正利用防止のため、注文情報に不備や不審な点がある場合は注文をキャンセルさせていただく場合がございます。】


【納期遅延について】
メーカー欠品中の場合は商品詳細の発送予定日よりお時間かかる可能性がございます。
予めご了承ください。
遅延が発覚した場合は、別途メールにてご連絡させていただきます。
ご購入後はメールのご確認をお願い致します。


【販売終了品について】
販売終了している商品は当店でお取り扱いが終了した時点での定価と販売価格になります。
販売終了している商品へお取替えをご希望の場合は、取替え可能な代替品をご案内させていただきます。
お取替え工事ご希望の方はこちらをご参照ください。



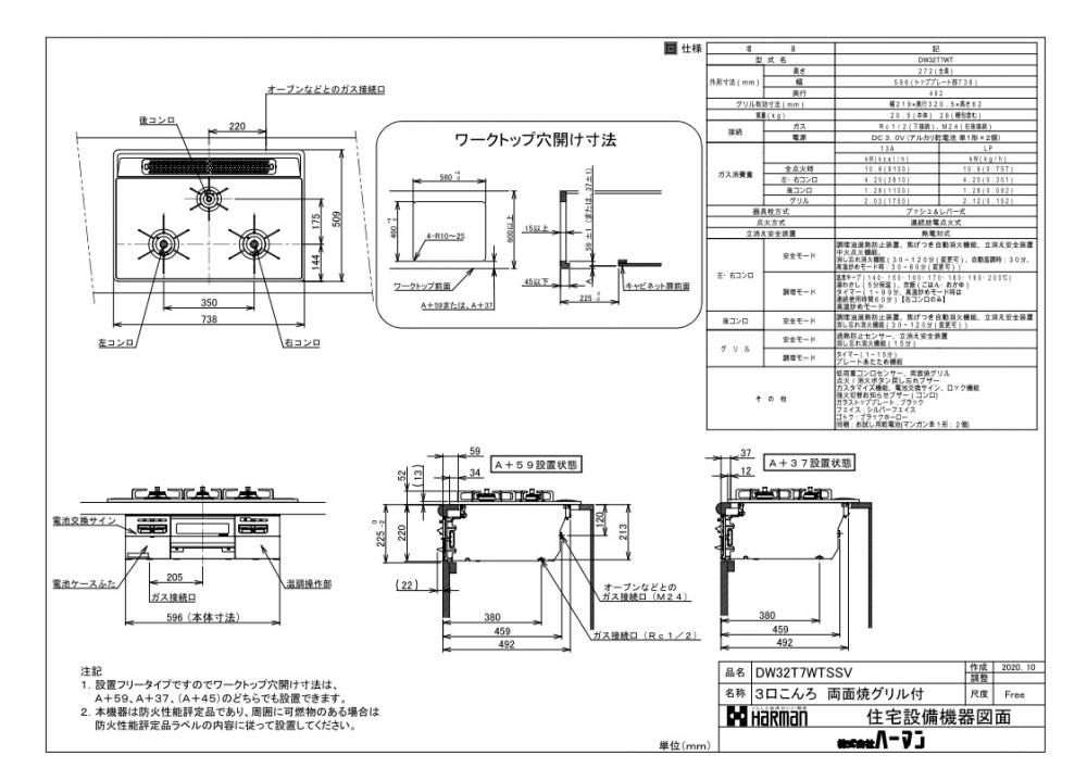
ハーマン製(HARMAN)DW32T7WTSSV fami (ファミ) 3口コンロ ガラストップタイプ 無水両面焼 ●ガスコンロ

DW32T7WTSSV

62,940円(税込69,234円)

ガス種

シンプルな操作で使いやすい。

●トップ間口:75cm
●トップ:ブラックガラストップ
●フェイス:シルバー
●ゴトク:ホーロー

●ダブル高火力&ダブルトロ火
●コンロ調理タイマー
●ダブル温度調節機能
●高温炒めモード
●ごはん・おかゆモード
●湯わかし機能
●あたため機能(プレートあたため手動)
●グリル調理タイマー
●シールドトップ構造(シングルパッキン方式)
●低荷重センサー

※温調操作部、グリル操作部は右位置となります。

☆工事ご希望の方はこちら

カテゴリーから探す