【※不正利用防止のため、注文情報に不備や不審な点がある場合は注文をキャンセルさせていただく場合がございます。】


【納期遅延について】
メーカー欠品中の場合は商品詳細の発送予定日よりお時間かかる可能性がございます。
予めご了承ください。
遅延が発覚した場合は、別途メールにてご連絡させていただきます。
ご購入後はメールのご確認をお願い致します。


【販売終了品について】
販売終了している商品は当店でお取り扱いが終了した時点での定価と販売価格になります。
販売終了している商品へお取替えをご希望の場合は、取替え可能な代替品をご案内させていただきます。
お取替え工事ご希望の方はこちらをご参照ください。



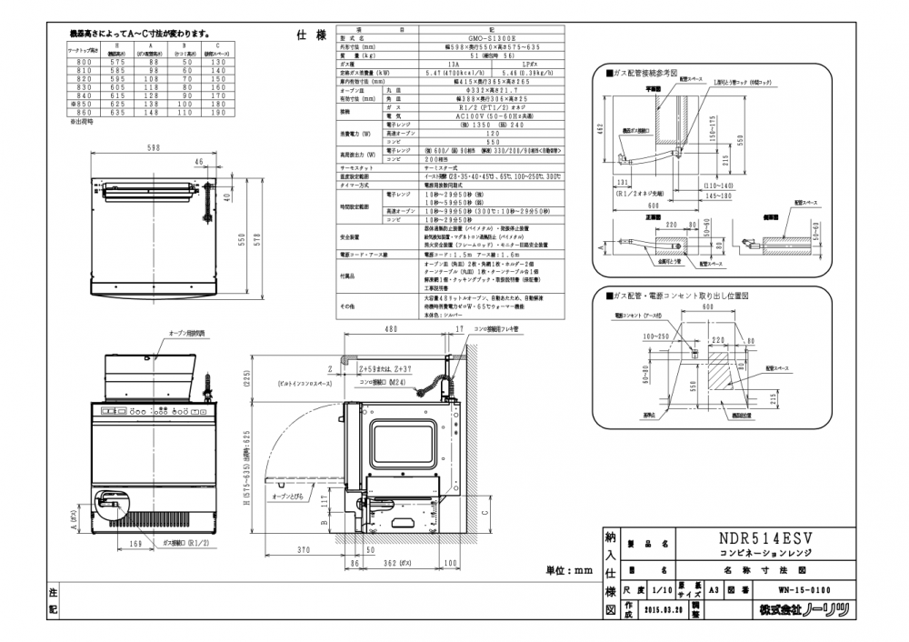
ガスオーブン ノーリツ製(NORITZ)NDR514ESV シルバー コンビネーションレンジ〈スタンダード〉

NDR514ESV

191,900円(税込211,090円)

定価 319,000円(税込350,900円)

ガス種




※お取り寄せ商品につき、お届けまでに7営業日前後(土日祝休日)かかります。
メーカー都合によっては納期がかかる場合があります。

●48Lタイプ
●本体カラー:シルバー
※写真はステンレスです。

●ハイパワー加熱
●保温機能
●イースト発酵
●ネクストサイン
●省エネ設計
●ロック機能
●セルフクリーニング加工

※ノーリツ指定外のビルトインコンロとは組み合わせできません。

カテゴリーから探す